一、什么是数字化绘图
数字化绘图是通过运用计算机、绘图板、数位笔、摄像机、扫描仪等数字设备及相关绘图软件完成的一种创作形式,通俗来说便是用电脑绘画。其中涉及到数百万种颜色的虚拟调色板,各种尺寸的画布或介质,以及各类橡皮擦、铅笔、画笔、刷子和2D、3D等效果工具,并有能够反复修改的功能。工作者在绘图板上通过精确的手部动作来模拟真实的笔触和绘图表现,甚至可以将传统的图纸改变成数字绘画。绘图工作者使用鼠标或数位板来显示笔触,这些笔触通过压感到数位板的表面或单击笔来显示。一般平板电脑具有超过2000种的不同级别的压力敏感度,更高级别的专业数位板已经拥有8192级压感,呈现的绘画效果更显丝滑流畅。我们在电影中常见的各类逼真写实的原画,通常就是通过数位板一笔一笔画出来的。数位板就像是画家的画板和画笔,追求的是如纸面书写般顺畅的手感,这也是键盘和手写板无法达到的。

数位屏临摹线图

数位屏手绘线图与填色
数字绘画是考古绘图方法的重要拓展,有着广泛的应用前景。数字绘画在考古绘图中具有一定的优势,能够有更多的表现形式,也为考古研究者提供了更丰富的研究信息。

数位屏临摹文物线图

数位屏手绘文物线图

三维模型绘制、石刻线图

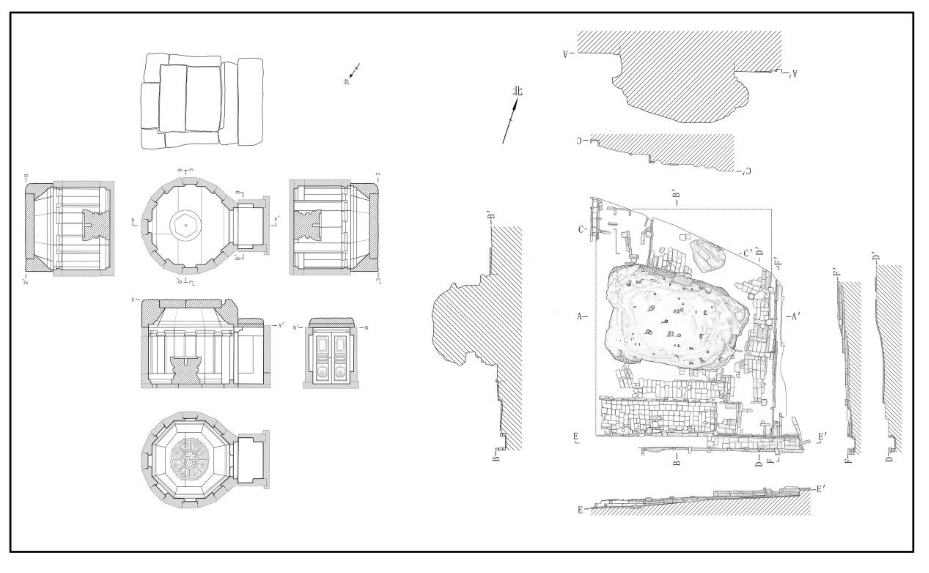
三维模型绘制遗迹、墓葬线图
考古绘图分为考古器物绘图与考古田野绘图,是考古不可或缺的一个重要环节。青花瓷纹饰精美、种类丰富,如书法、山水、花鸟及人物画等,均有丰富的层次感与节奏感。在绘制的过程中,往往也需要投入更多的精力与时间,绘图者常常受限于此。然而,数字绘画给了青花瓷更全面的表现方法。以下为万州天生城出土瓷器结合数字化做的几种尝试:
运用临摹渲染的方式对照实物进行临摹清绘,完整的还原实物的真实样貌,干净、美观、生动。与之相对,这种方法耗时较长,对绘者的绘图基本功要求比较高,一般只针对于图案色彩剥落、用色极淡不易辩认或需展开、器形纹饰精美且相对保存完整的瓷器。

清绘青花线图

清绘青花线图
运用电脑软件工具单独提取青花的纹饰部分,根据解剖的剖位,合理的呈现器物的表面。针对纹饰简单的青花,提取方便快捷,也能排除器物表面的外在干扰因素。对绘者的要求偏低,有计算机绘图软件操作基础即可,但对纹饰也有一定的要求,要求纹饰干净、清晰且独立,否则很难完整提取。

提取纹饰效果图
运用实物照片与线图完美的结合,真实的还原于实物本身,选择最优且全面的信息量来展现,为研究者与读者提供一目了然的信息。由于整体提取时需要考虑器物纹饰透视与变形的因素(绘者能自己拍摄最好),对图案操作技术的要求略高一些。

图&线结合满铺青花

图&线结合处理前后效果
在青花瓷与数字化结合的过程中,经过反复的尝试与比对,笔者认为清绘法固然美观、干净又富有艺术性,但对技术与图像的质量要求都极高,对于量大、任务重的考古器物图往往很难提速。局部提取纹样则仅可在简单且清晰的纹样中实施,具有一定的局限性。因此,满铺法更优,能更完整的表达青花瓷的图像信息。笔者进一步作出大胆尝试,纹样繁杂的滴水、工艺细腻的玉石、金、银、铜、铁器和结构繁杂的墓葬、石窟、建筑、牌坊等,是否都可以使用到这种方法呢?还是在运用的过程中改变一些技法与技巧即可实现?带着这一设想和初步实施效果,笔者与同事进行了相关实施方法的可行性讨论。同事也认为照片和线图综合性展示的方法不仅可以帮助研究者更好的理解瓷器微观特征之间的关系,从而得出更准确的结论,并且能够保证青花瓷的信息与报告质量,同时节省更多时间,大大提高了工作效率。与此同时,通过翻阅资料,证实这种方法在日本与韩国也有从业者提及和运用,虽具体实施方式略有出入,大致原理是相同的,进一步证实这一方法的可行性。

网络图片
不懂传统技术的原理,面对现代化工具也将无从下手,所有先进技术的产生和运用都缘起于传统技术的升级,数字绘画与传统绘画并行不悖,共同生辉。数字绘画作为一种新介质、新画种,是探索未知视觉世界的利器,也为考古绘图带来了新思路,同时也提出了更高的要求与标准。作为考古绘图工作人员,在掌握各种图像形式绘制能力的同时,也应该跳出固有的传统思维,融入现代数字化技术,在绘制过程中大胆创新,不断发展和完善,为研究人员提供更为完整、全面的研究信息。