
1号展厅。MARQ展览。摄影:Rocamora Museografía。
在这个从2023年3月持续到2024年1月的项目中,专门的博物馆化展示方式成为关键环节——它将策展人的理念与设计团队的创造力相结合,共同打造出引人入胜的叙事体验。该展览的参观人数创下了历史新高,自开幕以来接待的游客数量超过了28万人次,远超预期。
历史与科学叙事:一场双重的策展合作

分配通道。印有图案的布料。照片来源:Rocamora Museografía。
两位策展人——宁斌侯与马科斯·马丁农——分别提出了不同的策展思路。侯从历史与考古学的角度进行构思,而马丁农-托雷斯则从更具科学性与教育意义的视角来策划展览。将这两种截然不同的策展方法融合在一起,对此次博物馆展览项目而言无疑是一项挑战,但最终为参观者带来了一场丰富而均衡的体验。通过建筑艺术将这两大策展方向结合起来,极大地丰富了展览的观赏价值。
建筑舞台设计:一次穿越时空的旅程

3号展厅的概念图。设计:Ángel Rocamora,Rocamora Museografía公司。
此次展览的设计工作由Rocamora Museografía负责。这是一家跨学科设计机构,其业务范围涵盖建筑学、展览设计、考古学、平面设计、视听设计、内容创作及音乐制作等领域。该机构拥有一支专注于博物馆设计及文化遗产保护的专家团队,他们采用现代设计语言与表达方式来展现文化遗产的魅力。

此次展览位于马尔科博物馆的临时展厅内,由三个展厅及一条连接各展厅的通道组成。通道上悬挂着一大块由图形织物制成的连续式背光画作,为每个展厅提供了背景元素,同时也构成了整体的视觉线索。这个以参观者为核心的设计项目,将时空旅行作为创作工具,营造出一种超越传统博物馆界限的沉浸式体验。
1号展厅:两次大战之间时期

在第一个展厅中,展示了中国历史上的两次战争间隔期。这里的布景生动地再现了当时政治与领土上的混乱局面。在那个历史阶段,中国还不是一个统一的大国,而是由多个不同的地区构成的。这一时期充满了动荡,政治与领土状况极不稳定,这种不稳定通过展品陈列中出现的不对称设计得到了体现。
这个展厅的展品旨在展现这位征服者与战士的形象,因此主要展品都是与骑马作战相关的装备,包括各类武器与盔甲,同时还有一尊这座英雄皇帝的宏伟雕像。

1号展厅。MARQ展览。摄影:Rocamora Museografía。
家具与展柜中的对称性破坏体现了这个分裂国家的动荡不安。位于中央的秦始皇雕像被半透明帷幔精心遮掩,这一设计象征着那些被列入人类非物质文化遗产的中国传统习俗。而这一艺术手法又让人联想到历史记载中描述的那种禁忌——人们“不得直视皇帝的眼睛,也不得聆听他的声音”。

1号展厅。MARQ展览。摄影:Rocamora Museografía。
在顶部,作为假天花板的一部分,呈现出波浪起伏的视觉效果。这一效果是通过使用一层由黑色小灯组成的装置实现的,这些小灯被染成红色,并采用重量轻、质地轻盈的材料制成,因此能够呈现出细腻的动态效果。

1号展厅。MARQ展览。摄影:Rocamora Museografía。
在中国文化中,黑色是一种中性色彩,象征着北方与西方;这种颜色代表着永生、智慧、稳定与力量。而在这里,黑色被赋予了红色色调,从而强化了动荡、不稳定与暴力的氛围。这种舞台设计将游客带入一种充满动荡、暴力与不稳定的情境之中。这些灯笼都是普通的黑色制品,直径各不相同。
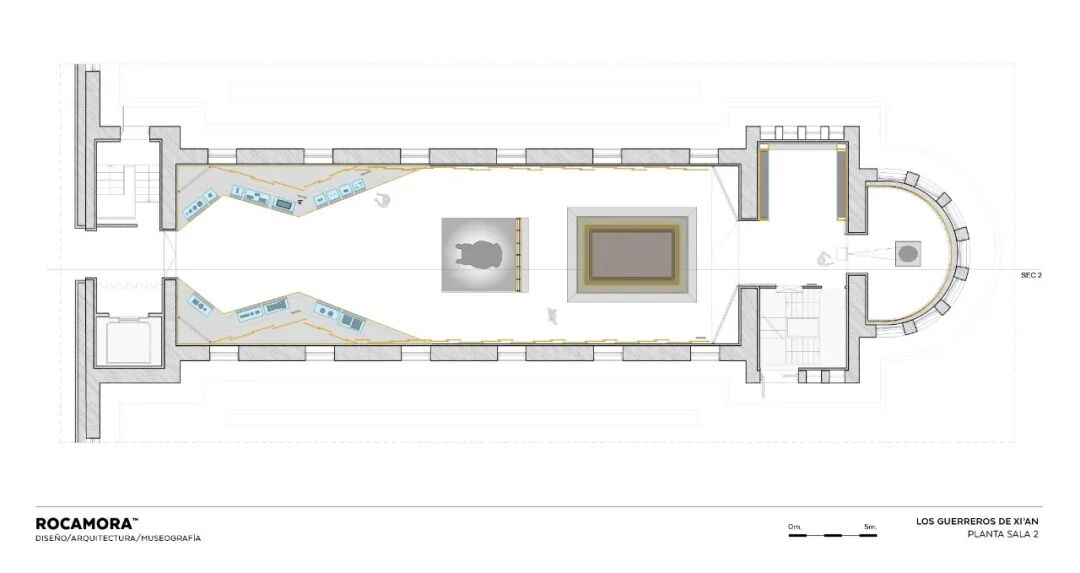
2号展厅:统一后的新中国

这代表了统一的中国:拥有统一的政权、统一的货币、统一的度量衡、统一的文字等等。从展出的考古文物来看,正是这样一个充满稳定的时代。

2号展厅。MARQ展览。摄影:Rocamora Museografía。
这个展厅的中心雕塑是秦始皇,他被塑造成近乎神圣的形象。展厅四周环绕着用仪式用毛笔蘸墨书写的书法作品,营造出一种庄严的氛围。作为展示载体使用的可印刷布料,既让人联想到传统稻草纸,也模仿了这种天然有机材料的质感。而那件被遮盖的雕塑作品,则再次展现了中国传统文化中的“阴影意象”,同时体现了人们对直接瞻仰皇帝这一行为的禁忌观念。

2号展厅。MARQ展览。摄影:Rocamora Museografía。
这种“假屋顶”通过相互交错的三角形结构,再现了中国传统建筑的几何形态与色彩特征。其横梁采用EPS材料制成,通过大型机械利用热切割技术进行加工;表面经过密封处理后涂成红色。整个装置固定在一个金属框架上,该框架由80.60.4规格的不锈钢管制成,专门为安装在这个房间内而设计。

2号展厅。MARQ展览。摄影:Rocamora Museografía。
本质上,这是一个致力于教学与科学研究的场所。在这里,人们利用视频映射技术,重新呈现了战士雕塑上原本丢失的色彩;同时,这项技术也被应用于制作真实尺寸的战士模型,从而解决了如何设计既能保证雕塑稳定性,又能实现恰当投影效果的支撑结构的难题。

关于一位战士的视频素材。照片由Diana Maján提供。
除了那些采用3D打印技术制作的实物模型外,还展出了些说明性模型,这些模型属于那些被捐赠的展品系列,它们展示了陶土战士与陶土马的制作过程,为观众带来了全方位、引人入胜的教育体验。

立体模型。摄影:Diana Maján。
根据策展人制定的教学体系,这些艺术品被分别与相应的颜料及金属元素进行了对应搭配。
根据考古学研究,这些颜料被用来为战士们涂装颜料。它们是通过将经过研磨的岩石与矿物油混合而天然获得的。

2号展厅。教学区。MARQ展览。摄影:Rocamora Museografía。
3号展厅:沉浸在皇帝的陵墓之中

第三个展厅专门展示了那些著名的陶土战士雕像,为游客带来独一无二的体验。这些雕像被陈列在圆柱形展柜中,仿佛将游客带入了皇帝的陵墓之中。这种沉浸式的体验让游客感觉自己被这些战士们环绕着;而天花板上的镜子则通过反射效果,让游客仿佛真正成为了这群雕像中的一员。

3号展厅。MARQ展览。摄影:Rocamora Museografía。
这些弧形玻璃由Curved glass公司制造,采用6+6层夹层玻璃结构,高度为268厘米,半径为150厘米。最终由Antra木工团队负责安装。
计划在下一次展览中重新使用这些玻璃制品,从而最大限度地延长其使用寿命。

3号会议室。查看PDF文件
天花板上使用的镜子都是经过精心挑选的,它们能呈现出清晰且无失真的反射效果,使参观者仿佛融入到那些雕塑群中,并能从不同角度欣赏到作品的细节。这种反射式空间的设计其实是一种建筑手法,旨在让观众更深入地体验这座皇帝陵墓的氛围。

3号展厅中弧形玻璃展柜的详细信息

3号展厅。MARQ展览。摄影:Rocamora Museografía。
3号展厅的圣坛区域巧妙地运用了镜子的设计:特别使用了那种能防止参观者影像被反射出来的特殊玻璃。在展厅的后部,还安装了一面倾斜的镜子,营造出令人惊叹的“无限重复”视觉效果。
此次展览是首次让人们能够从360度角度近距离观察这些战士雕像的展览。从任何视角都能清晰地看到每一个细节,从而发现每个战士的面部特征都与其所塑造的人物形象完全吻合——也就是说,每座雕像都有着独特的面孔与表情。

3号展厅。MARQ展览。摄影:Rocamora Museografía。
向劳动者致敬的这一社会空间转型,体现了人们对这一宏伟工程背后所承载的记忆与人文价值的珍视与承诺。
在欣赏了这些陶俑之后,参观者会来到展览的下一区域——这个区域具有社会意义,旨在纪念那些塑造了这些陶俑的工匠们,同时铭记他们的名字。在这个区域里,人们会看到这12位工匠的名字,以此向他们的辛勤付出表示敬意,同时也承认他们所经历的艰辛,正是这些艰辛使得这一宏伟作品得以诞生。
闭幕展览:当代中国与未来中国
位于马尔克斯图书馆内的这个展览正在逐步走向尾声,这一过程充分展现了艺术布景在连接中国过去、现在与未来方面的非凡能力。这一艺术装置让人们得以窥见当代中国文化及其与传统文化传承之间的紧密联系,同时标志着中国向多元文化与国际化迈出的大胆一步。

展览结束。照片由Rocamora Museografía提供。
教学方法与无障碍环境:技术的整合与包容性的实现
该展览共设置了14个数字科学展馆,用于展示各类详细信息。此外,还配备了触觉互动展项,可呈现这些展品的3D打印模型,让观众能够从立体角度了解这些展品。
展览的内容经过了调整,既提供了盲文版本,也提供了手语解说服务,从而确保所有人士都能无障碍地参观展览。

无障碍模型。照片提供:Diana Maján。
为提升可访问性,人们采取了多种措施:从设置可触碰元素及在电视上添加缩放功能,到仔细考量图形与文字的颜色搭配(包括背景颜色与文字颜色),以及调整文字的大小。同时,文本的排版方式也经过了优化,以确保人们能够轻松阅读。

无障碍模型。照片由Rocamora Museografía提供。
每个展厅都经过精心设计,其内部氛围与主题相匹配,配备了相应的独特气味,从而营造出令人身临其境的独特体验。声音效果同样经过精心策划,其中包含了五首由音乐家路易斯·伊瓦尔斯创作并演奏的音乐作品。这些作品通过传统乐器演奏出来,为展览增添了丰富的听觉元素,进一步凸显了每个展厅的故事内涵。

解说区。照片由Rocamora Museografía提供。
为确保参观者的舒适性与游览体验,游览路线中设置了多处休息区。此外,还专门设置了讲解服务区域,旨在为各类游客提供流畅、稳定且舒适的参观体验。这种对无障碍设施与舒适度的全面考量,使得此次展览成为一场面向所有人的、具有包容性的文化盛会。
该项目不仅严格符合相关法规中规定的无障碍标准,其设计初衷更是为了让所有参观者都能融入其中。从专为视障人士设计的可触摸模型,到专为儿童设计的互动设施,整个展览空间构成了一个具有包容性、适合所有人使用的社交场所。它不仅仅满足于遵守法规要求,更致力于通过巧妙运用建筑设计与建筑材料,创造出真正具有包容性的博物馆环境,让所有人都能方便地参观展览。
对可持续性的承诺
在博物馆建筑的建造与开发过程中,人们优先选择了完全可回收的材料,从而实现了100%的回收利用率。为进一步提升环保效益,23%的场馆采用租赁模式运营,这有效降低了运营成本,同时促进了循环经济的发展——例如,在未来的博物馆展览中,这些圆柱形展柜将被重新利用。
具体而言,此次展览完全致力于材料的回收与再利用。在正在筹备中的下届MARQ展览中,预计将有70%的展览材料得到再利用,30%的材料则来自完全回收的资源;这样一来,展览产生的不可回收垃圾比例将降至0%。

3号展厅。MARQ展览。摄影:Rocamora Museografía。
该博物馆展陈空间的建筑结构十分完整,其主要材料为FINSA防火板材;这种材料的使用确保了环境中不存在有害化学物质甲醛。所使用的芬莎板材均通过了无甲醛检测认证,其表面厚度为19毫米,而在需要弯曲处理的部位,板材厚度则降至10毫米。
这些经过批量着色的DM展示板主要被用于展览陈列中,作为展品的支撑与展示底座。

1号展厅的展柜详情
需要特别指出的是,印刷纺织品上所呈现的图案是通过环保型溶剂油墨印制而成的。
这些涂料不仅具备出色的视觉效果,而且对环境十分友好,不会向大气中释放挥发性有机化合物;其成分中使用的各种液体均具有完全生物降解性。这种对可持续性的承诺超越了美观层面的要求,进一步确立了该产品作为环保实践典范的地位。

2号展厅。MARQ展览:模仿稻草纸效果的印花织物。照片提供:Rocamora Museografía。
所采用的纺织数字印刷技术基于热升华原理,使用水基分散型油墨,可实现直接在聚酯织物上印刷或通过转印方式印刷,随后再利用热压机对油墨进行热固化处理。
这些环保涂料以水为基底,具有柔韧性、无异味,并且对环境友好。在制作过程中所使用的材料均不会褪色,同时具备防火性能,而且对环境完全无害——这些材料不含有毒残留物(不含PVC),同时可完全生物降解,从而有助于减少废弃物产生,保护环境。上述材料均获得了GREENGUARD、ECOLOGO及OEKO-TEX®等认证。
仿真沉浸式吊顶

这些仿制的主题式装饰元素,如小灯笼和木梁结构,不仅具有美观效果,同时还发挥着结构支撑的作用。
诸如2号展厅的骨架与支撑结构之间的连接方式等具体构造细节,在设计时均充分考虑了其耐用性与实用性。此外,还探讨了使用可持续材料的可能性,以此进一步体现该展览对环保的承诺。

2号展厅。MARQ展览。摄影:Diana Maján。


2号大厅屋顶的构造细节
第一个房间里的天花板通过使用被红光染色的黑色小灯来模拟波浪的动态效果,这一设计体现了建筑学与美学上的创新与挑战。

1号展厅。MARQ展览。摄影:Diana Maján。
这些小灯的悬挂结构经过精心设计,旨在实现柔和、和谐的摆动效果。设计过程中采用了轻质材料及悬挂技术,使其呈现出仿佛处于失重状态的外观,从而象征性地再现了那个历史时期动荡不安的社会氛围。

1号展厅的展区布局与展柜设计。
一个金属支架被搭建起来,其覆盖范围涵盖了整个空间(包括x轴和y轴方向),并配有电缆线路。通过这个支架系统,那些小灯被用钓鱼线悬挂在不同的高度上,从而营造出一种极具动态美感的视觉效果。
战略性照明与阴影效果
照明在Rocamora博物馆所设计的建筑景观中发挥着至关重要的作用,它为每个展室的视觉呈现效果做出了贡献。
关于所使用的照明类型、其布局位置以及与展览主题的关联等方面的详细信息,让我们能更深入地了解这一照明设计。在实施过程中,人们谨慎地控制了照明的最大亮度,以确保不会对博物馆展品产生负面影响,并制定了精确的亮度限制标准。照明设计会根据不同展厅的用途或所需营造的效果进行调整;所有设计方案在最终安装完成后,都经过了实景测试。色彩的选择则基于每个展厅所期望营造的视觉效果——比如第一个展厅采用的粉色色调,以及第二展厅中围绕皇帝形象营造出的朦胧氛围。

2号展厅。MARQ展览。摄影:Rocamora Museografía。
这些光影游戏,尤其是那些再现两次世界大战期间场景的展厅,都是经过精心设计的,旨在增强观众的感官体验,并再现当时的历史氛围。
建筑与博物馆学之间的交叉领域
在建筑学与博物馆学交汇之处,展览“秦汉王朝的遗产——西安的武士们”成为了该研究机构在博物馆建筑领域创新能力的生动见证。
将丰富的历史底蕴与建筑艺术相结合,每一个展厅都成为了让过去重现生机的舞台;而这座建筑本身,则成为了讲述秦汉王朝复杂历史的载体。
建筑不仅承载着各种考古遗迹,更成为一种至关重要的元素,编织出一种超越时空界限的视觉叙事。
这个项目体现了形式与功能之间的协同作用——建筑不仅具备美学价值,更成为一种载体,带领游客体验独特而富有意义的旅程;与此同时,游客本身也成为这座建筑结构的一部分。
在多学科的融合中,罗卡莫拉博物馆不仅成功设计出了一个展览空间,更创造出一个三维的展示载体,让历史得以“活”起来。这一成就为当代文化领域中建筑与博物馆设计的结合树立了新的标杆。

该展览在享有盛誉的EXPONE奖项评选中荣获“全国最佳展览项目”奖项,同时还获得了2023年EMPORIA金奖,因其作为非巡回性临时展览中的最佳展陈设计而受到表彰。